重庆市梁平区奇爽食品有限公司、社会公众及其利害关系人:
梁平奇爽食品产业园扩建工程位于重庆市梁平工业园区,建设单位(重庆市梁平区奇爽食品有限公司)申请对该项目方案进行优化调整。
调整内容为:
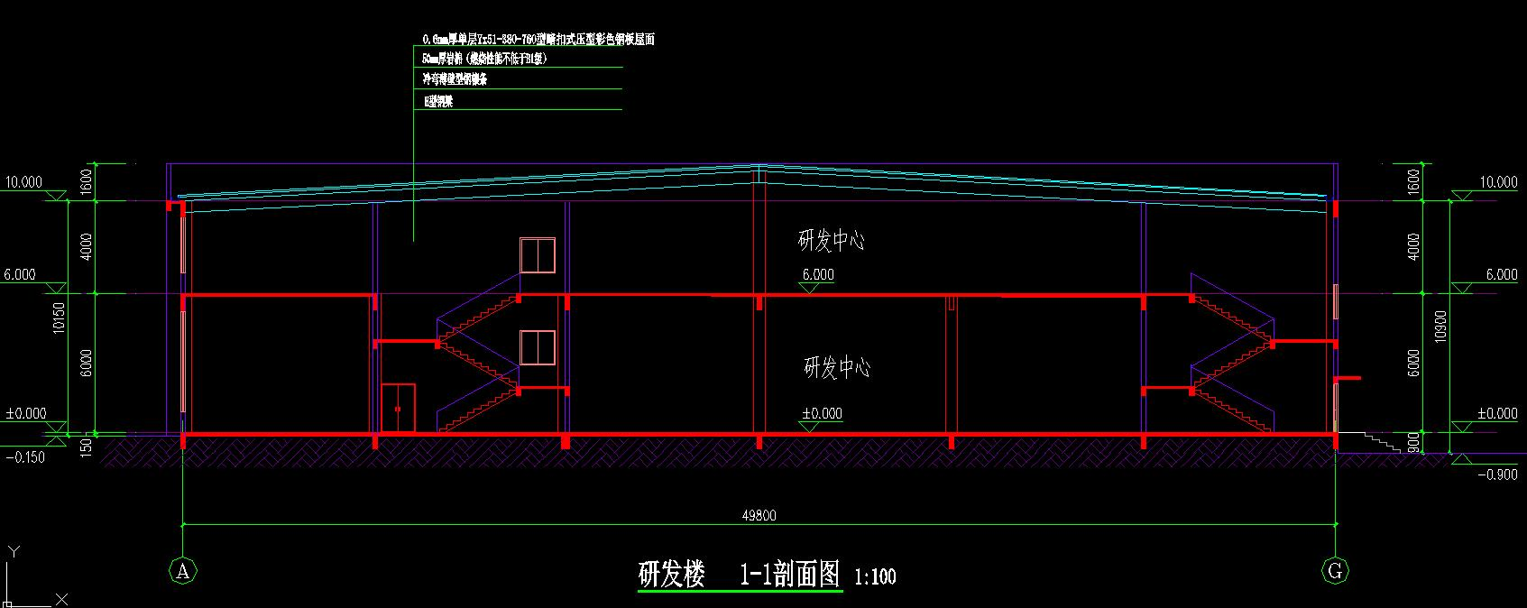
1.工程名称由梁平奇爽食品产业园扩建工程调整为梁平奇爽食品产业园扩建项目—柚子车间工程。
2.将原拟建的2层钢筋砼结构研发办公楼建筑调整为1层钢结构柚子车间厂房建筑;相应配建停车位减少,满足要求。
3.建筑高度由10.90m修改为7.30m。
4.总建筑面积由4272.00m2修改为2138.30m2。
5.建筑正负0设计标高由453.40修改为452.60。
公示时间:2021年7月14日—2021年7月20日
公示地点:项目现场及重庆市梁平区规划和自然资源局网站(http://www.cqlp.gov.cn/ghzrzyj/)
若贵单位或个人有意见和建议,请注明身份(单位名称、机构代码证及法定代表人身份证明、个人姓名及身份证复印件)、联系电话和邮寄地址,在2021年7月20日前将书面意见及涉及其利害关系的材料邮寄或直接提交至重庆市梁平区规划和自然资源局。逾期未提出的,视为自动放弃权利。
各相关利害关系人也可自公示期满之日起五个工作日内向重庆市梁平区规划和自然资源局提出书面听证申请并提交涉及其重大利害关系的材料。逾期未提出的,视为自动放弃听证权利。
联系地址:重庆梁平工业园区管理委员会
邮编:405200
联系人:陈乾
联系电话:023-53333007
附图:
一、平面对比图(原、修)

原图

修改后
二、立面对比图(原、修)

原图

修改后
三、剖面对比图(原、修)

原图

修改后
四、鸟瞰图(原、修)

原图

修改后
国务院部门网站
地方政府网站
市政府部门网站
区(县)政府网站
其他有关网站
版权所有:重庆市梁平区人民政府主办:重庆市梁平区人民政府办公室
ICP备案:渝ICP备06000570号-1网站标识码:5002280002
渝公网安备50022802000041号







