| 索引号 | 1150022873397104X5/2025-00158 | 发文字号 | |
| 主题分类 | 建设规划 | 体裁分类 | 公告公示 | 
| 发布机构 | 梁平区梁山街道办事处 | 有效性 | |
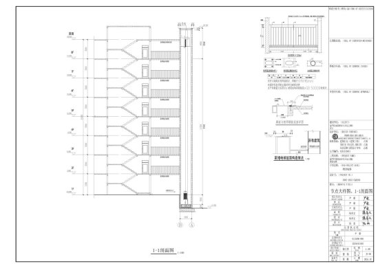
| 标题 | 重庆市梁平区梁山街道办事处关于南园巷60号D幢(1单元)增设电梯的公示 | ||
| 成文日期 | 2025-10-23 | 发布日期 | 2025-10-23 | 
| 索引号 | 1150022873397104X5/2025-00158 | 
| 发文字号 | |
| 主题分类 | 建设规划 | 
| 体裁分类 | 公告公示 | 
| 发布机构 | 梁平区梁山街道办事处 | 
| 有效性 | |
| 标题 | 重庆市梁平区梁山街道办事处关于南园巷60号D幢(1单元)增设电梯的公示 | 
| 成文日期 | 2025-10-23 | 
| 发布日期 | 2025-10-23 | 










